11/11/2023
By : admin_vaibhav / 0 Comments
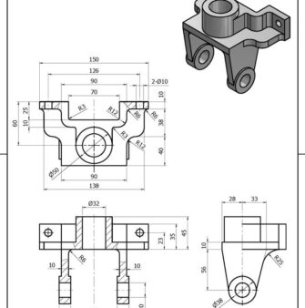
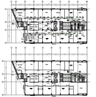
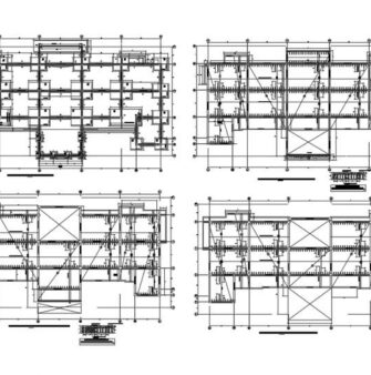
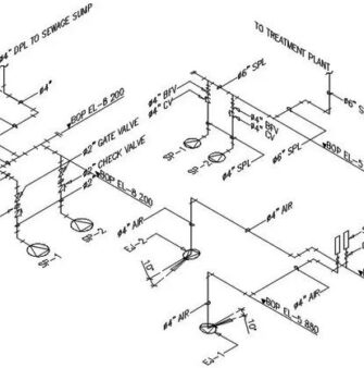
Elevate your design concepts with our CAD Drafting Services. DrawingLabs' skilled team translates ideas into detailed and accurate CAD drawings, ensuring precision and clarity in every project.