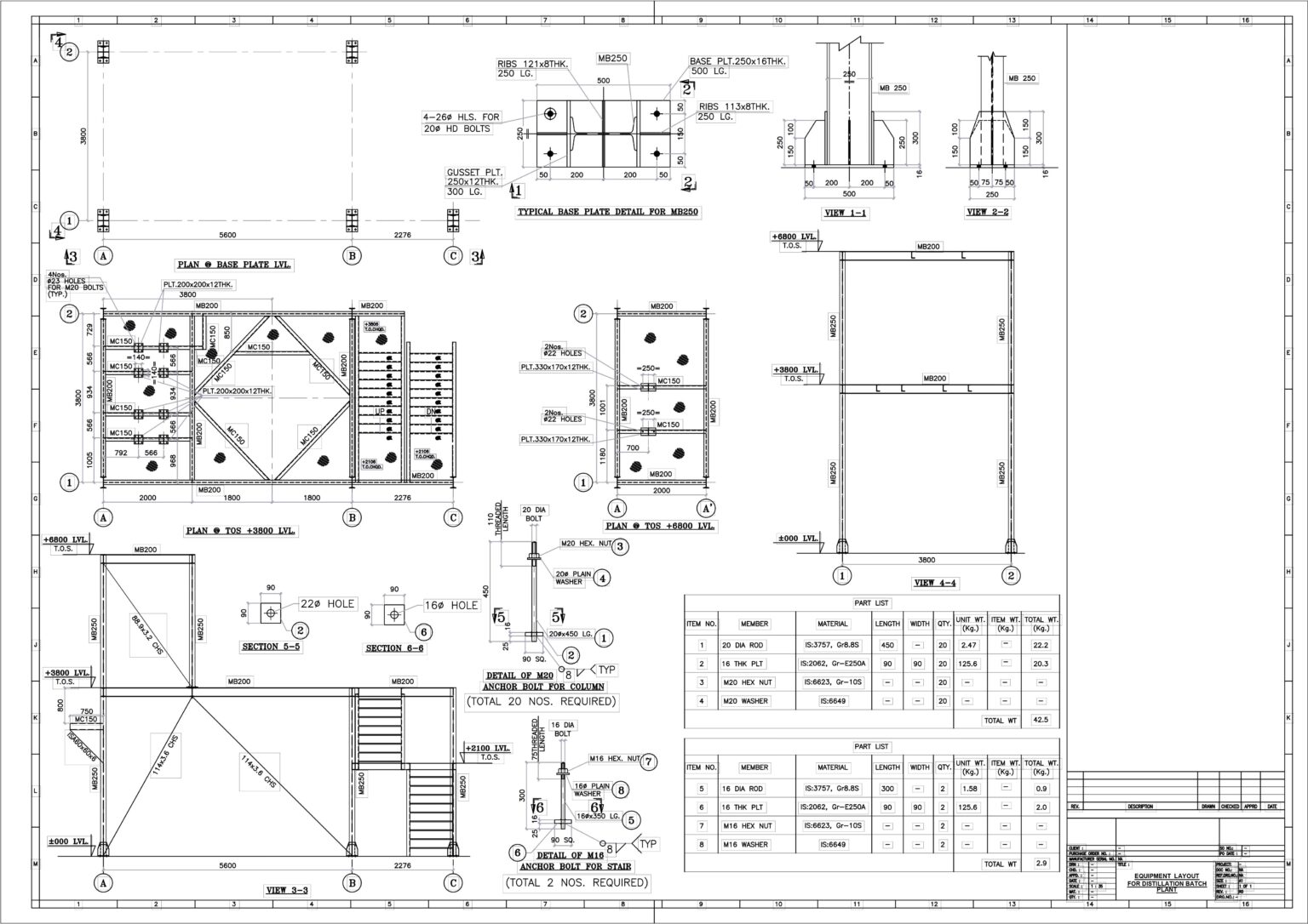
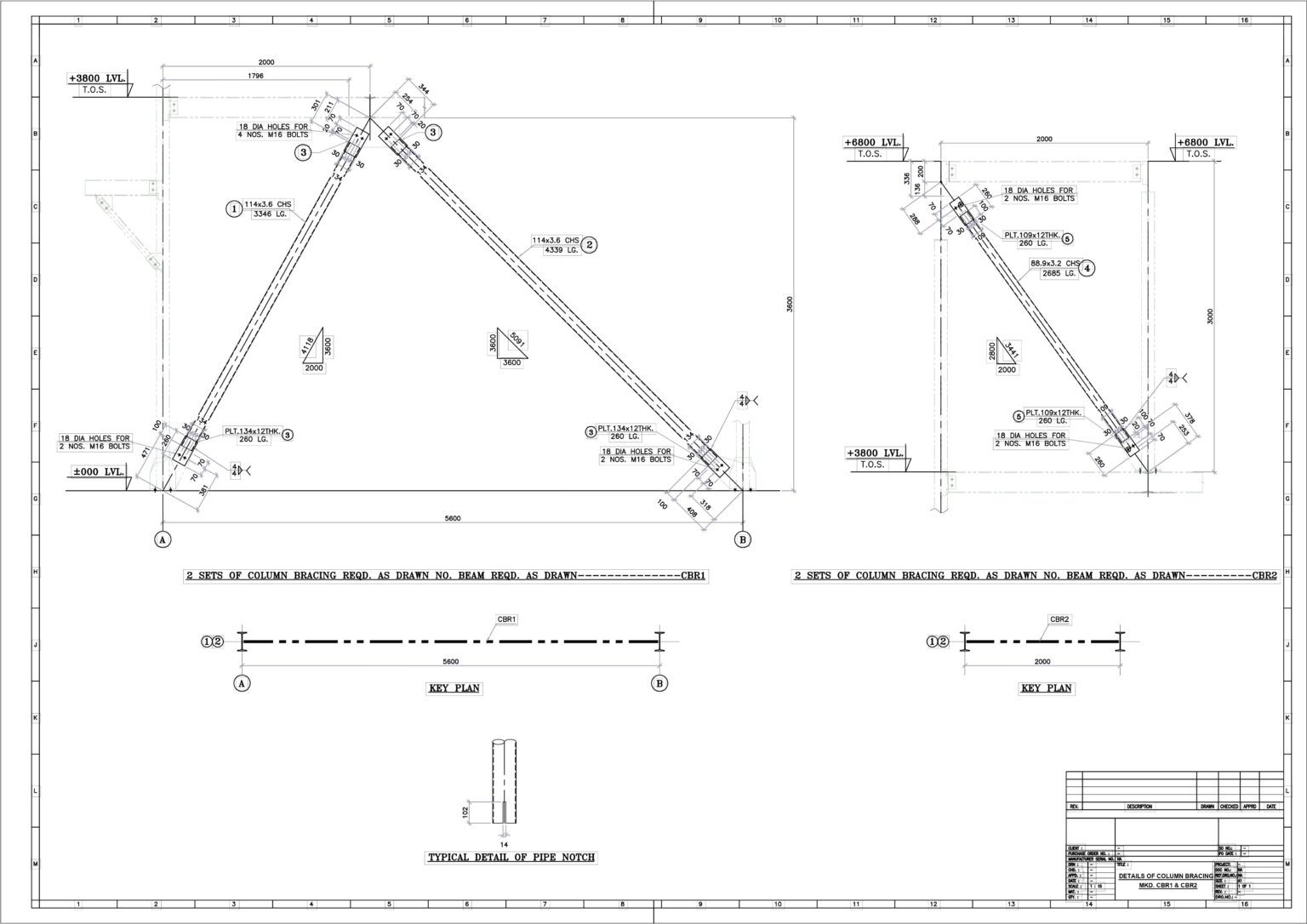
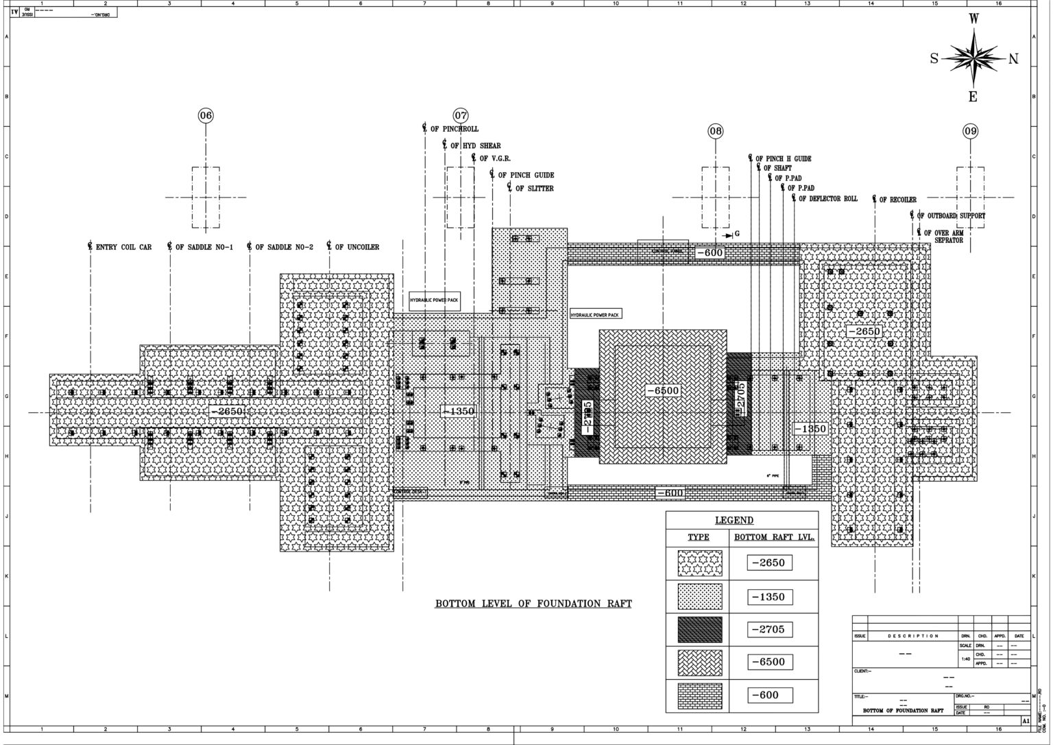
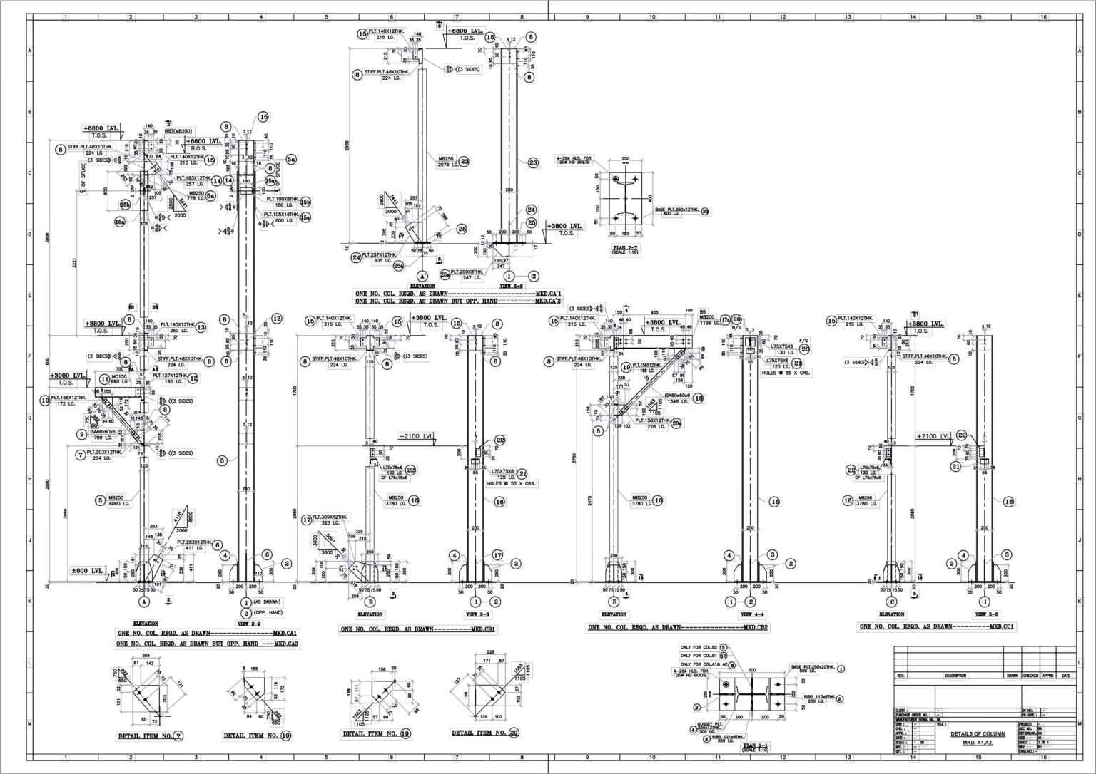
Fabricate robust steel structures with confidence using our Steel Fabrication Shop Drawing services. DrawingLabs' skilled team produces comprehensive drawings that meet industry standards, facilitating efficient fabrication and installation processes.